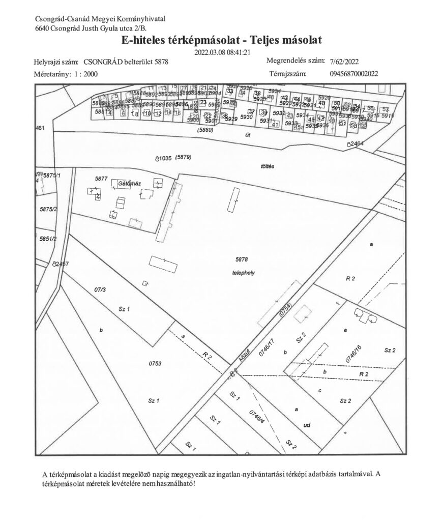
Csongrád Városi Önkormányzat nyílt pályázatot hirdet a felhívás mellékletét képező térképmásolaton feltüntetett, és természetben Csongrád, Baross Gábor rakpart 51. sz. alatt lévő ingatlan idegenforgalmi célú értékesítésére.
Az ingatlan leírása: Az értékesítés tárgyát képező csongrádi 5878 hrsz-ú ingatlan kivett, telephely megjelölésű, 2 ha 3950 m2 területű, amely a Körös toroki üdülőterület feljárójánál, a Tisza védtöltés mellett helyezkedik el.
A terület teljes önálló közmű bekötéssel rendelkezik, idegenforgalmi célú hasznosításra alkalmas.
A pályázat benyújtása: kizárólag írásban, zárt borítékban lehet benyújtani a Csongrádi Polgármesteri Hivatal Fejlesztési és Üzemeltetési Irodáján (Csongrád, Kossuth tér 7., 105. szoba)
A felhívásra minden nagykorú magánszemély, vagy bármely jogi személy pályázhat.
Nem nyújthat be érvényes pályázatot, akinek Csongrád Város Önkormányzatával szemben bármilyen lejárt tartozása van.
A beérkezés határideje: 2022. június 1. (szerda) 15 óra. A borítékra kérjük ráírni: Csongrádi 5878 hrsz. ingatlan idegenforgalmi fejlesztése– pályázat
A pályázatnak tartalmaznia kell:
- A megajánlott vételár összegét, melynek mértéke minimum nettó 130.000.000 Ft, a jogügylet a fordított ÁFA fizetés hatálya alá tartozik
- A vételár kifizetésének időpontját, ütemezését.
- Az ingatlanon végrehajtani kívánt idegenforgalmi célú fejlesztések, beruházások ismertetését, azok ütemezését, a vevő által tervezett tevékenység leírását, az üzemeltetés formáját, a várható foglalkoztatotti létszámot.
- A pályázónak vállalnia kell, hogy az ingatlan megvásárlásától számított legkésőbb 4 éven belül az ingatlanon megvalósítja a pályázata szerinti beruházást. Ütemezett beruházás esetén a vállalt fejlesztés pontos leírását, az ezzel kapcsolatos határidők rögzítését.
A beruházási kötelezettség teljesítésére, ennek biztosítására az eladó 30.000.000 Ft kötbérfizetés vállalását írja elő. Ezen kötelezettség biztosítására jelzálogjog alapú ingatlanfedezetet, vagy banki biztosítékot kell adni.
A pályázatokat – az önkormányzat számára legelőnyösebb elfogadásával – Csongrád Városi Önkormányzat képviselő testülete bírálja el.
A pályázat kiírója fenntartja a jogát, hogy megismerve a pályázatokat, várospolitikai, önkormányzati érdekből a pályázatot eredménytelennek nyilvánítja.
A pályázatkészítés kizárólag a pályázó üzleti kockázata, a kiíróval szemben megtérítési igényt nem támaszthat.
Bővebb információval a Fejlesztési és Üzemeltetési Iroda áll rendelkezésre. (Tel.: 63/571-981, 20/777-8338) Előzetes egyeztetés alapján az ingatlan megtekinthető.
Melléklet:









